Не упусти свой шанс! Последние акции от застройщиков  ▼

Продается 3-комнатная квартира, Староволынская ул., 15к3

170 000 000 Р

Староволынская ул.15к3

Дата публикации: 27 марта 2024

Дата обновления: 26 октября 2025

Телефон: 
Показать телефон

+7 (495) 104-56-15

Агентство:  ООО Метриум

Название: ЖК "Ближняя Дача"

От застройщика: 0 квартир в продаже

Этаж: 1 / 22

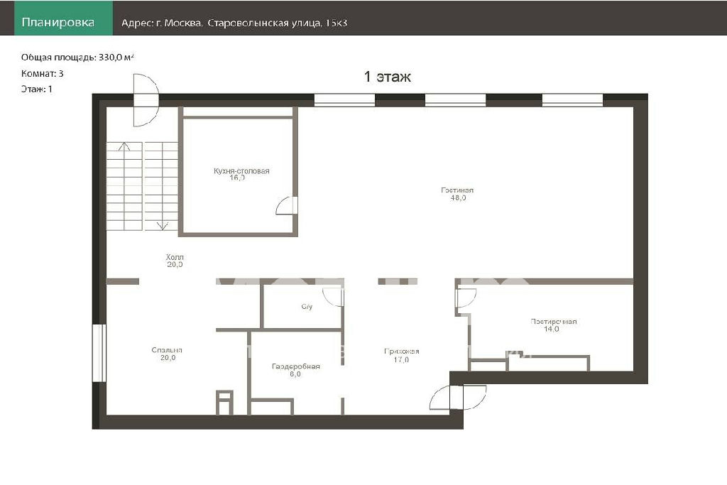
Общая: 330 м2

Жилая: не указано

Кухня: не указано

Комнаты: не указано

Балкон/лоджия: не указано

Лифт: не указано

Окна: не указано

Санузел: два санузла

Мусоропровод: не указано

Состояние квартиры: первичная отделка

Тип дома: кирпичный

Год постройки: 2022

Территория: огороженная

Парковка: не указано

Статус сделки: продажа

Сделка: прямая продажа

Собственность: не указано

Основание права собственности: не указано

Описание

ID 24193 Предлагается 2-уровневая квартира в жилом комплексе "Ближняя дача".
Отделка выполнена с использованием натуральных качественных материалов. Квартира меблирована, оборудована современной бытовой техникой и готова к проживанию.
Функциональная планировка 1 уровня включает в себя кухню-столовую, гостиную, спальню, гардеробную, постирочную, санузел; цоколь - мастер спальня с ванной и гардеробной комнатами, SPA-зона (сауна, хамам, джакузи), тренажерный зал.
ЖК "Ближняя дача" это элитный жилой квартал, который расположен на западе Москвы в непосредственной близости от Волынского леса.
Жилой комплекс имеет подземный паркинг, огражденную охраняемую территорию, на которой разместились роликовые и велосипедные дорожки, детские площадки, цветники, прогулочные дорожки.

Метриум Премиум участник ассоциации агентств элитной недвижимости AREA.

Квартира на карте

ПанорамыКарта
Спецпредложения
Добавить объявление